profil sufitowy UD30 3m STEELA (24/240)

https://prolexnysa.pl/web/image/product.template/1024/image_1920?unique=d1be025

Profile do suchej zabudowy UD 30 sufitowy 3m

ŁATWOŚĆ MONTAŻU
Montaż systemu STEELA PROFIL jest szybki i nieskomplikowany dzięki licznym ułatwieniom, jak np. umieszczone na profilach ściennych otwory „H”, usprawniające zakładanie instalacji elektrycznych i sanitarnych.
PRECYZJA WYKONANIA
Gwarantujemy stuprocentową powtarzalność kształtu, wysoką dokładność wymiarów i precyzyjne wykonanie. Profile są produkowane zgodnie z obowiązującymi normami w zakresie tolerancji wymiarów i parametrów technicznych.
MATERIAŁY WYSOKIEJ JAKOŚCI
Nasze profile produkowane są wyłącznie z surowców spełniających normy europejskie dla budownictwa, dostarczanych przez najlepszych światowych producentów stali.
BEZPIECZEŃSTWO
Wszystkie nasze rozwiązania są w najwyższym stopniu bezpieczne. Zwiększoną stabilność i sztywność systemu uzyskaliśmy dzięki specjalnym kształtom oraz moletowanej powierzchni profili. STEELA PROFIL spełnia wszelkie wymagane normy polskie i europejskie, co potwierdzają liczne certyfikaty.
NOWOCZESNOŚĆ I INNOWACYJNOŚĆ
Profile STEELA PROFIL stanowią innowacyjny, zaawansowany technicznie system. Żeby wdrożyć ich produkcję, zastosowaliśmy nowatorską, unikatową technologię z ulepszonym moletowaniem.


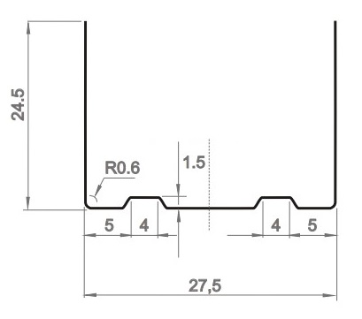
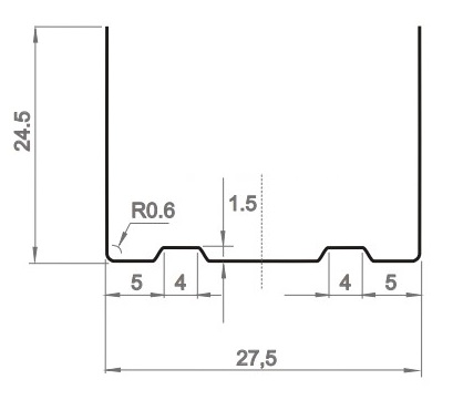
Specyfikacja:
Rozmiar: UD 30 24,5/27,5/24,5;
Reakcja na ogień: Euroklasa A1 (Decyzja Komisji 96/603/WE ze zmianami);
Trwałość: Klasa B;
Granica plastyczności: ≥180 N/mm2;
Materiał: Taśma stalowa ocynkowana DX51D+Z100 do Z275 g/m2 o grubości 0,40 mm; 0,45 mm; 0,5 mm; 0,6 mm wg PN-EN 10346:2015.

4,41 zł 4.41 PLN 4,41 zł netto

4,41 zł netto

Not Available For Sale

Ta kombinacja nie istnieje.


Odnośnik wewnętrzny: PR UD30 S 3

Ilość na stanie

Jednostka miary: szt.