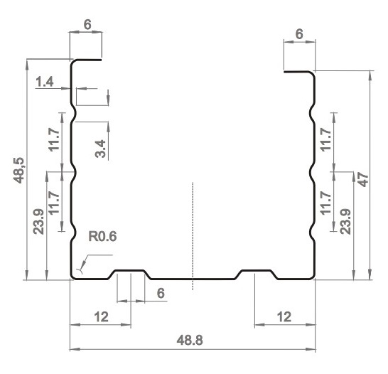
profil ścienny C 50 2,6m wysoki STEELA (12/108)

https://prolexnysa.pl/web/image/product.template/1366/image_1920?unique=ebc679e

Profile do suchej zabudowy C 50 ścienny 2,6m

ŁATWOŚĆ MONTAŻU
Montaż systemu STEELA PROFIL jest szybki i nieskomplikowany dzięki licznym ułatwieniom, jak np. umieszczone na profilach ściennych otwory „H”, usprawniające zakładanie instalacji elektrycznych i sanitarnych.
PRECYZJA WYKONANIA
Gwarantujemy stuprocentową powtarzalność kształtu, wysoką dokładność wymiarów i precyzyjne wykonanie. Profile są produkowane zgodnie z obowiązującymi normami w zakresie tolerancji wymiarów i parametrów technicznych.
MATERIAŁY WYSOKIEJ JAKOŚCI
Nasze profile produkowane są wyłącznie z surowców spełniających normy europejskie dla budownictwa, dostarczanych przez najlepszych światowych producentów stali.
BEZPIECZEŃSTWO
Wszystkie nasze rozwiązania są w najwyższym stopniu bezpieczne. Zwiększoną stabilność i sztywność systemu uzyskaliśmy dzięki specjalnym kształtom oraz moletowanej powierzchni profili. STEELA PROFIL spełnia wszelkie wymagane normy polskie i europejskie, co potwierdzają liczne certyfikaty.
NOWOCZESNOŚĆ I INNOWACYJNOŚĆ
Profile STEELA PROFIL stanowią innowacyjny, zaawansowany technicznie system. Żeby wdrożyć ich produkcję, zastosowaliśmy nowatorską, unikatową technologię z ulepszonym moletowaniem.

Specyfikacja:
Rozmiar: 48,5/48,8/47;
Reakcja na ogień: Euroklasa A1 (Decyzja Komisji 96/603/WE ze zmianami);
Trwałość: Klasa B;
Granica plastyczności: ≥180 N/mm2;
Materiał: Taśma stalowa ocynkowana DX51D+Z100 do Z275 g/m2 o grubości 0,45 mm; 0,5 mm lub 0,6 mm wg PN-EN 10346:2015.

8,58 zł 8.58 PLN 8,58 zł netto

8,58 zł netto

Not Available For Sale

Ta kombinacja nie istnieje.


Odnośnik wewnętrzny: PR C50 S 2,6

Ilość na stanie

Jednostka miary: szt.