Kołek wszechstronny KW 10x80 nylon (100szt.)

https://prolexnysa.pl/web/image/product.template/69/image_1920?unique=d092e46

Kołek wszechstronny KW 10x80 nylon (100szt.)

Do łączenia elementów drewnianych lub drewnopochodnych w branży meblarskiej i stolarskiej.

Gniazdo PZ Gniazdo PZ umożliwia wkręcenie wkręta wieloma dostępnymi narzędziami.
Koszulka z nylonu Materiał o większej elastyczności, ułatwia montaż w pustkach oraz płytach G-K.
Ocynk galwaniczny Optymalne zabezpieczenie antykorozyjne dla zastosowań wewnętrznych.
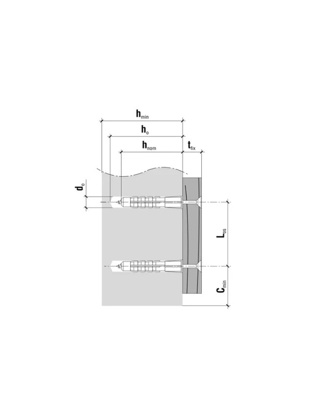
Unikalny kształt koszulki Unikalny kształt koszulki ma zastosowanie we wszystkich rodzajach podłoży dzięki czemu kołek jest bardzo uniwersalny. Wewnętrzny kształt koszulki naprowadza wkręt do końcowego otworu przelotowego zapobiegając nieprawidłowemu wkręceniu wkręta i tym samym błędnemu rozparciu. Wypusty stabilizujące zapobiegają przekręcaniu koszulki w otworze oraz zwiększają siłę rozparcia w podłożu. Kształt koszulki powoduje spętlenie się tworzywa i pewne zakotwienie po przeciwnej stronie cienkościennego podłoża.

45,15 zł 45.15 PLN 45,15 zł netto

45,15 zł netto

Not Available For Sale

Ta kombinacja nie istnieje.


Odnośnik wewnętrzny: KW 10X 80N

Ilość na stanie

Jednostka miary: 100szt.